Skip to main content
Chi siamo
Servizi
Immobiliari
Fiduciari
Finanziari e assicurativi
Immobili
Contatti
Chi siamo
Servizi
Immobiliari
Fiduciari
Finanziari e assicurativi
Immobili
Contatti
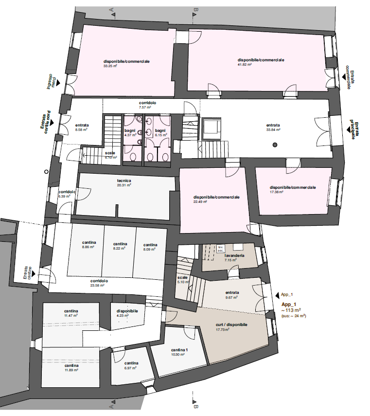
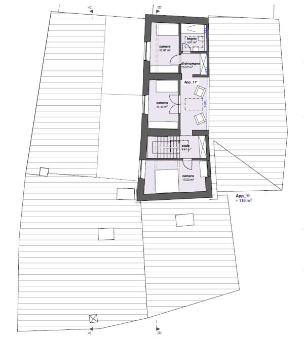
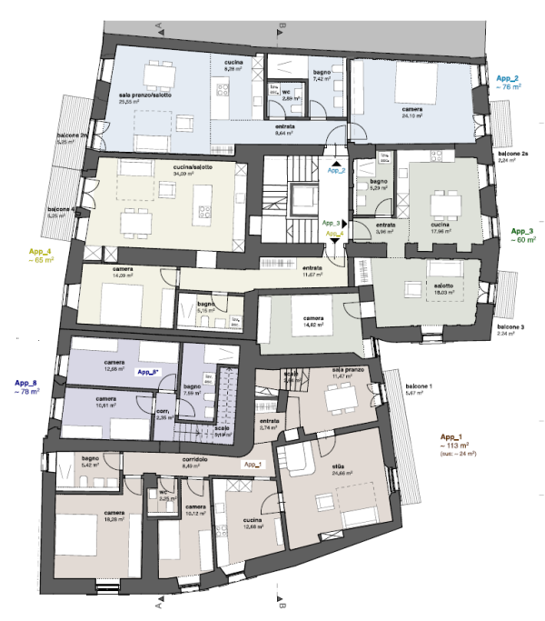
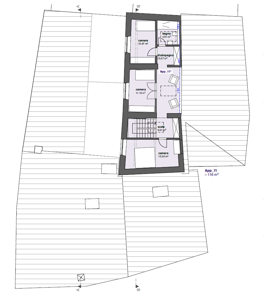
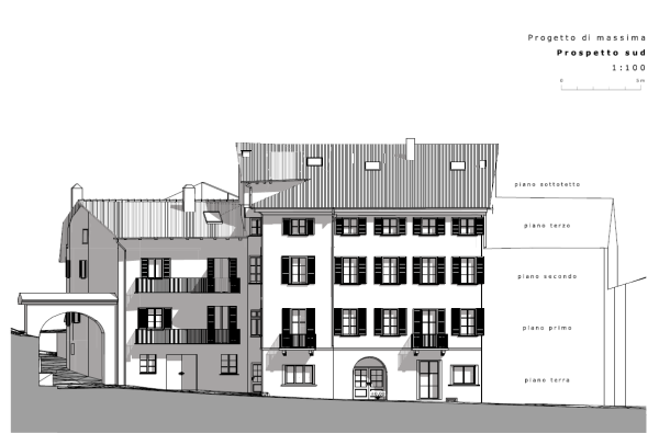
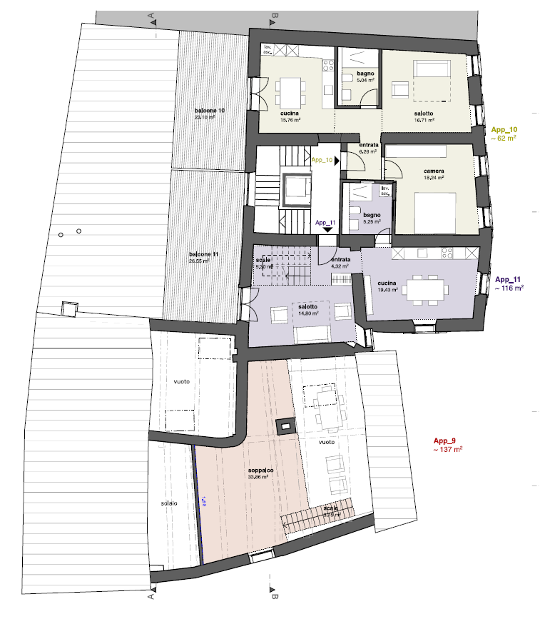
vendesi appartamenti residenza Altavilla, Poschiavo
Dettagli immobile
posizione
: Via da Zurcà 25 + 27
metratura calpestabile
: da 56 a 137 m2
numero piani
: 4
numero abitazioni
: 11
extra
: posteggi all'aperto, ascensore e balconi
riscaldamento
: teleriscaldmento
prezzo:
su richiesta
progetto in fase di elaborazione
ristrutturazione totale dell'edificio esistente
realizzazione di 11 unità abitative di cui alcune secondarie
appartamenti da 2.5 a 5.5 locali (modifiche ancora possibili)
ascensore e balconi
14 posteggi esterni
inizio lavori autunno 2026
possibilità di personalizzare le finiture interne
Galleria:
tutti gli immobili